GRUNDSTÜCK MIT BAUGENEHMIGUNG FÜR LUXUS-VILLA MIT POOL
Ruhige Lage für Ihren Wunsch-Erfüller
In einem ruhigen Dorf finden Sie dieses unglaubliche 1.370 m² umfassende, von einer Hecke und einem Zaun umrahmte Grundstück. Es wird Stellplätze für 4 Autos geben.
Modernes Wohnglück mit Pool
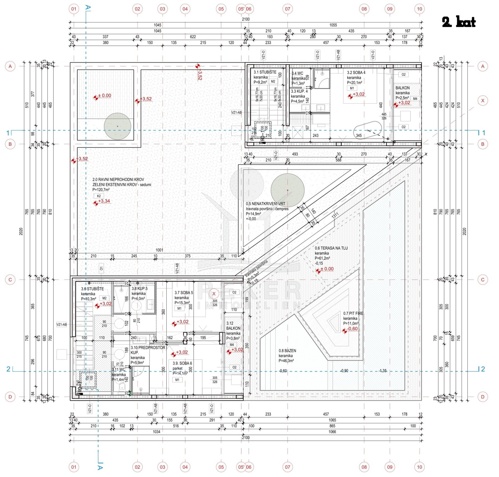
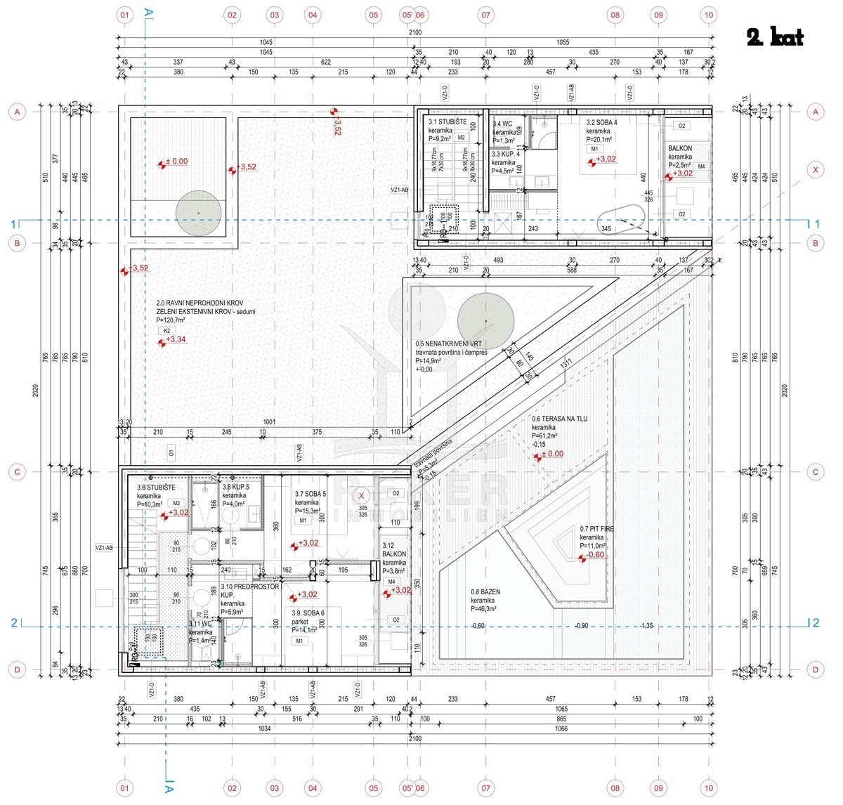
Großzügige 410 m² Wohnfläche, die sich auf 2 Stockwerke verteilt, bilden eine geräumige Wohlfühl-Oase. Die geplante Fußbodenheizung soll über eine Wärmepumpe gesteuert werden, während Gebläsekonvektoren das Haus kühlen sollen. Auch die Installation einer Photovoltaikanlage ist geplant.
Besonders der mediterran bepflanzte Garten mit 56 m² großem, beheizbarem Pool und Feuerstelle wird Sie begeistern! Freuen Sie sich hier auf die schönsten Stunden Ihres Lebens.
Beneidenswerte Verwöhnmomente
Das Erdgeschoss begeistert mit einem sehr großen Wohnbereich mit offener Küche und Essplatz, einem Gäste-WC und einem hauseigenen Wellness-Bereich. Im Preis enthalten sind alle gezahlten Gebühren, die eingeholte Baugenehmigung und alle notwendigen Angeboten für die Baufertigstellung und Möblierung.
Wo Träume wahr werden...
In jedem der beiden Obergeschoss befinden sich 3 Schlafzimmer mit jeweils eigenem Bad. Perfektioniert wird diese genehmigte Luxus-Villa durch eine zauberhafte Dachbegrünung.
Das Baugrundstück erwartet Sie in Motovun!
- Ort: Motovun (Stadt)
- Einwohnerzahl: 983 (2011)
- Region: Istrien
- Autobahnentfernung: ca. 22 km *
- Nächster Flughafen: Pula / ca. 70 km *
Immobiliendaten
- Objektart: Grundstück
- Objekttyp: Baugrundstück
- ID: 5031
- Kaufpreis: 250.000 €
- Provision: 3,75% inkl. MwSt. in Kroatien
- Grundstücksgröße: 1370 m²
- Land: Kroatien
- Region: Istrien
- Ort: Motovun
- Meerentfernung: 30 km
Haben Sie Interesse das schöne Baugrundstück zu besitzen?
Nehmen Sie gerne Kontakt mit mir auf!
Ich bin Heiner Reker, Gründer und
Geschäftsführer von Reker Immobilien d.o.o. Ich begleite Sie bei Ihrer aufregenden Reise in die Welt der Immobilien in Kroatien.
Gerne organisiere ich persönlich mit meinen qualifizierten Partnern jeden Schritt bei Ihrem rechtssicheren und stressfreien Immobilienkauf in Kroatien.
Füllen Sie das Formular aus und ich melde mich gerne zum gewünschten Zeitpunkt bei Ihnen.
Bis bald
Exposé mitnehmen?
Laden Sie unser PDF-Exposé herunter und Sie haben die wichtigste Objektdaten & Bilder immer zur Hand
Exposé mitnehmen?
Nehmen Sie Kontakt mit uns auf, ein Exposé schicken wir gerne per E-Mail
Ihre Traum-Immobilie noch nicht gefunden?
Besuchen Sie diese Seiten!




































