EXKLUSIVES BAUGRUNDSTÜCK MIT PROJEKT FÜR 3 TRAUMVILLEN IN MALINSKA
Exklusives Baugrundstück in Malinska
Das einzigartige Baugrundstück in Malinska bietet Ihnen die Möglichkeit, Ihr Traumhaus ganz nach Ihren Vorstellungen zu errichten. Die ruhige Lage in der Nähe des Meeres ermöglicht es Ihnen, die Schönheit und Ruhe der Umgebung zu genießen. Mit nur wenigen Minuten Fahrt erreichen Sie die malerischen Strände von Malinska, die für ihre Vielfalt und Schönheit bekannt sind. Die Uferpromenade und der Hafen bilden das lebhafte Zentrum des Ortes, wo Sie in charmanten Restaurants und Konobas die kulinarischen Köstlichkeiten der Region probieren können. Die zahlreichen Freizeitmöglichkeiten und kulturellen Angebote machen Malinska zu einem beliebten Urlaubsort für Besucher jeden Alters. Tauchen Sie ein in die entspannte Atmosphäre von Malinska und gestalten Sie Ihr eigenes Refugium an der malerischen kroatischen Küste.
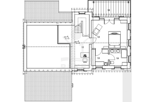
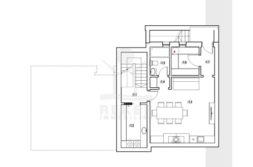
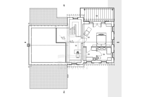
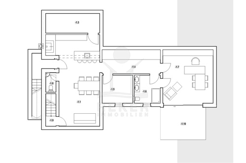
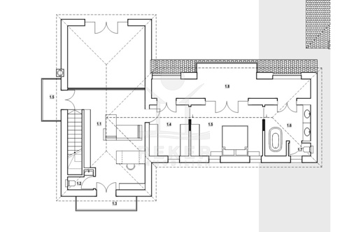
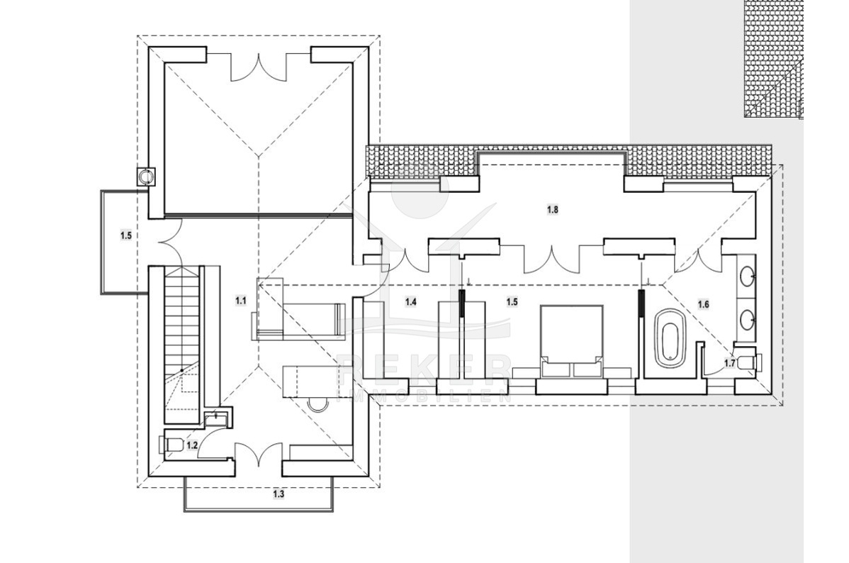
Das Anwesen erstreckt sich über eine Gesamtfläche von 2.412 m² und bietet Platz für drei traumhafte Villen. Villa A und Villa B haben jeweils eine Fläche von 305 m², während Villa C über großzügige 378 m² verfügt.
Luxuriöses Wohnen auf höchstem Niveau
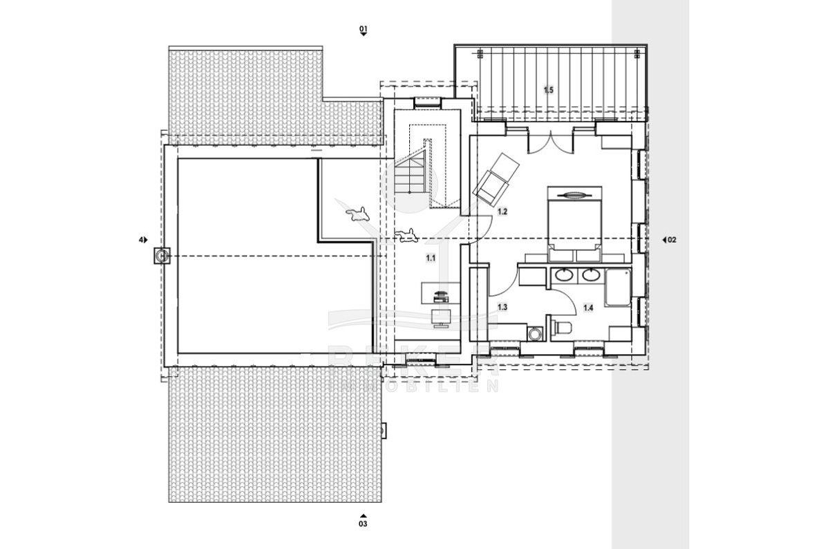
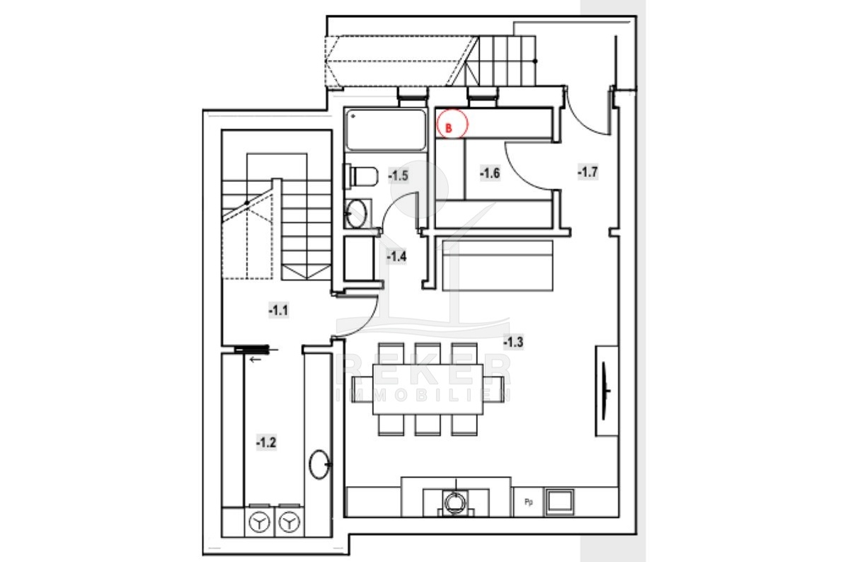
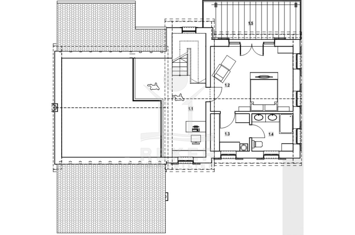
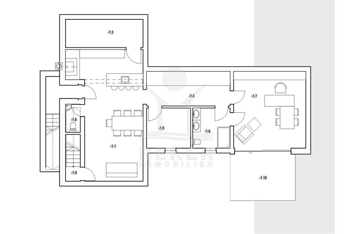
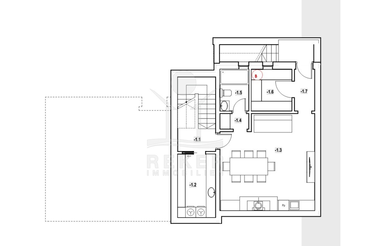
Das Baugrundstück eignet sich perfekt für den Bau von exklusiven Villen, die den Bewohnern ein luxuriöses Wohnerlebnis bieten. Die Villen werden nach höchsten Standards und mit hochwertigen Materialien gebaut. Jede Villa besteht aus 3 Etagen: Im Untergeschoss befindet sich eine Taverne, die perfekt für gesellige Abende ist. Das Erdgeschoss umfasst ein geräumiges Wohnzimmer, eine moderne Küche, einen Essbereich, 2 Schlafzimmer mit eigenen Badezimmern, ein zusätzliches WC und eine großzügige überdachte Terrasse. Im 1. Stock gibt es eine Galerie mit Blick auf das Wohnzimmer sowie das Hauptschlafzimmer mit eigenem Badezimmer und begehbarem Kleiderschrank. Die Immobilien werden mit Fußbodenheizung, Klimaanlage und 2 Parkplätzen pro Villa ausgestattet sein.
Das Baugrundstück erwartet Sie in Malinska!
- Ort: Malinska (Dorf)
- Einwohnerzahl: 965 (2011)
- Region: Kvarner-Bucht
- Insel: Krk
- Autobahnentfernung: ca. 18 km *
- Nächster Flughafen: Rijeka / ca. 15 km *
Immobiliendaten
- Objektart: Grundstück
- Objekttyp: Baugrundstück
- ID: 7161
- Kaufpreis: 1.300.000 €
- Provision: 3,75 % inkl. MwSt. in Kroatien
- Grundstücksgröße: 2412 m²
- Land: Kroatien
- Region: Kvarner-Bucht
- Ort: Malinska
- Meerentfernung: 2 km
Haben Sie Interesse das schöne Baugrundstück zu besitzen?
Nehmen Sie gerne Kontakt mit mir auf!
Ich bin Heiner Reker, Gründer und
Geschäftsführer von Reker Immobilien d.o.o. Ich begleite Sie bei Ihrer aufregenden Reise in die Welt der Immobilien in Kroatien.
Gerne organisiere ich persönlich mit meinen qualifizierten Partnern jeden Schritt bei Ihrem rechtssicheren und stressfreien Immobilienkauf in Kroatien.
Füllen Sie das Formular aus und ich melde mich gerne zum gewünschten Zeitpunkt bei Ihnen.
Bis bald
Exposé mitnehmen?
Laden Sie unser PDF-Exposé herunter und Sie haben die wichtigste Objektdaten & Bilder immer zur Hand
Exposé mitnehmen?
Nehmen Sie Kontakt mit uns auf, ein Exposé schicken wir gerne per E-Mail
Ihre Traum-Immobilie noch nicht gefunden?
Besuchen Sie diese Seiten!

















