ATTRAKTIVES BAUGRUNDSTÜCK IN LOVRAN MIT GENEHMIGTEM BAUPROJEKT UND MEERBLICK
Perfekte Lage in Lovran mit Meerblick
Das attraktive Baugrundstück mit Baugenehmigung und Projektgenehmigung befindet sich in einer ruhigen Umgebung in Lovran, nur 1,5 km vom Meer und 1,3 km vom Zentrum entfernt. Lovran, eingebettet in die malerische Kvarner Bucht und umrahmt von der majestätischen Kulisse des Učka-Gebirges, bietet eine zauberhafte Szenerie für Ihr zukünftiges Zuhause. Die Stadt ist bekannt für ihre zahlreichen Sehenswürdigkeiten und die exklusive Lungomare-Promenade, die zum Flanieren einlädt.
Baugrundstück mit Baugenehmigung und Projektzulassung
Das Anwesen mit einer Grundstücksfläche von 948 m² in leichter Hanglage. Mit einer bereits erteilten Baugenehmigung und Projektzulassung ist dieses Grundstück ein perfektes Fundament für Ihre Bauvorhaben. Das Baugrundstück bietet die Möglichkeit, eine traumhafte Familienvilla mit Swimmingpool und offenem Meerblick zu errichten.
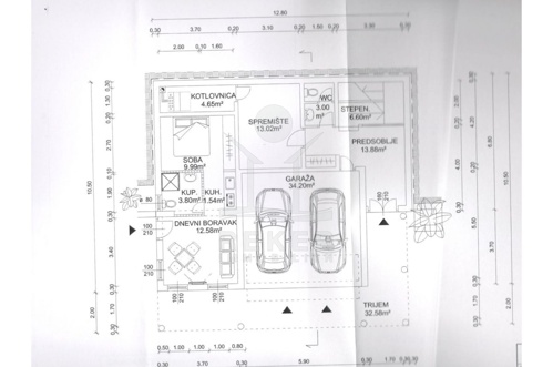
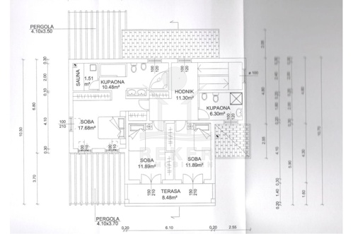
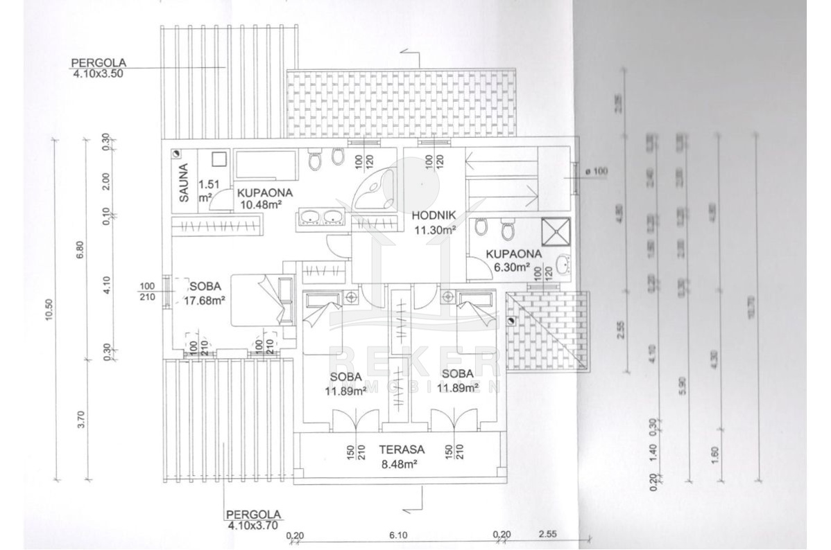
Die geplante Villa erstreckt sich über ein Untergeschoss, ein Erdgeschoss und ein Obergeschoss. Im Untergeschoss befinden sich ein Schlafzimmer, ein Badezimmer, ein großer Aufenthaltsraum, eine Küche, ein WC, ein Abstellraum und der Heizungsraum und eine Garage. Das Erdgeschoss beinhaltet eine Treppe, einen Flur, ein weiteres WC, Terrassen, einen Wohn-Ess- und Küchenbereich sowie eine Veranda mit einem kleinen Vorbau. Das Obergeschoss im zweiten Stock verfügt über drei Schlafzimmer, ein Schlafzimmer mit eigenem Badezimmer, ein zusätzliches Badezimmer, eine Sauna, einen Balkon und eine Pergola.
Interessenten können die detaillierten Grundrisse einsehen, ums sich inspirieren zu lassen, um Ihre zukünftige Traumvilla zu planen. Das Baugrundstück bietet die perfekte Umgebung für eine großzügige und luxuriöse Wohnimmobilie, die alle Annehmlichkeiten für eine komfortable und stilvolle Lebensweise bietet.
Das Baugrundstück erwartet Sie in Lovran!
- Ort: Lovran (Dorf)
- Einwohnerzahl: 4.101 (2011)
- Region: Kvarner-Bucht
- Autobahnentfernung: ca. 10 km *
- Nächster Flughafen: Rijeka / ca. 46 km *
Immobiliendaten
- Objektart: Grundstück
- Objekttyp: Baugrundstück
- ID: 6777
- Kaufpreis: 300.000 €
- Provision: 3,75 % inkl. MwSt. in Kroatien
- Grundstücksgröße: 948 m²
- Land: Kroatien
- Region: Kvarner-Bucht
- Ort: Lovran
- Meerentfernung: 2 km
- Ortsmitte: 1300 m
Haben Sie Interesse das schöne Baugrundstück zu besitzen?
Nehmen Sie gerne Kontakt mit mir auf!
Ich bin Heiner Reker, Gründer und
Geschäftsführer von Reker Immobilien d.o.o. Ich begleite Sie bei Ihrer aufregenden Reise in die Welt der Immobilien in Kroatien.
Gerne organisiere ich persönlich mit meinen qualifizierten Partnern jeden Schritt bei Ihrem rechtssicheren und stressfreien Immobilienkauf in Kroatien.
Füllen Sie das Formular aus und ich melde mich gerne zum gewünschten Zeitpunkt bei Ihnen.
Bis bald
Exposé mitnehmen?
Laden Sie unser PDF-Exposé herunter und Sie haben die wichtigste Objektdaten & Bilder immer zur Hand
Exposé mitnehmen?
Nehmen Sie Kontakt mit uns auf, ein Exposé schicken wir gerne per E-Mail
Ihre Traum-Immobilie noch nicht gefunden?
Besuchen Sie diese Seiten!







