EINMALIGE GELEGENHEIT: BAUGRUNDSTÜCK IN LÄNDLICHER GEGEND LINARDIĆI MIT 969 M² FLÄCHE
Ruhe und Natur in Linardići
Das Baugrundstück mit einer Fläche von 969 m² befindet sich in einer ruhigen und ländlichen Gegend von Linardići. Umgeben von idyllischer Natur und weitläufigen Feldern bietet das Grundstück viel Platz und Ruhe für Ihren individuellen Wohntraum. Sie erreichen das Meer in nur wenigen Minuten - entweder mit einer kurzen Autofahrt oder einem entspannten Fußmarsch von etwa 1,5 km. Genießen Sie die abgeschiedene Lage und erschaffen Sie sich Ihr eigenes Paradies, fernab vom Trubel der Stadt. Der perfekte Ort, um zur Ruhe zu kommen und die Schönheit der Natur zu genießen
Großzügiges Grundstück mit exklusiven Baumöglichkeiten
Auf dem Baugrundstück am Rande der Bauzone mit herrlichem Blick auf das Meer besteht die Möglichkeit, ein exklusives Wohnhaus zu errichten. Die Projektdokumentation sowie die Baugenehmigung liegen bereits vor, wodurch eine zeitnahe Umsetzung des Bauvorhabens möglich ist. Zudem besteht die Option, einen Vertrag für professionelle Bauarbeiten abzuschließen, welche qualitativ hochwertig ausgeführt werden und während des gesamten Projekts überwacht werden.
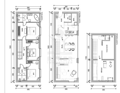
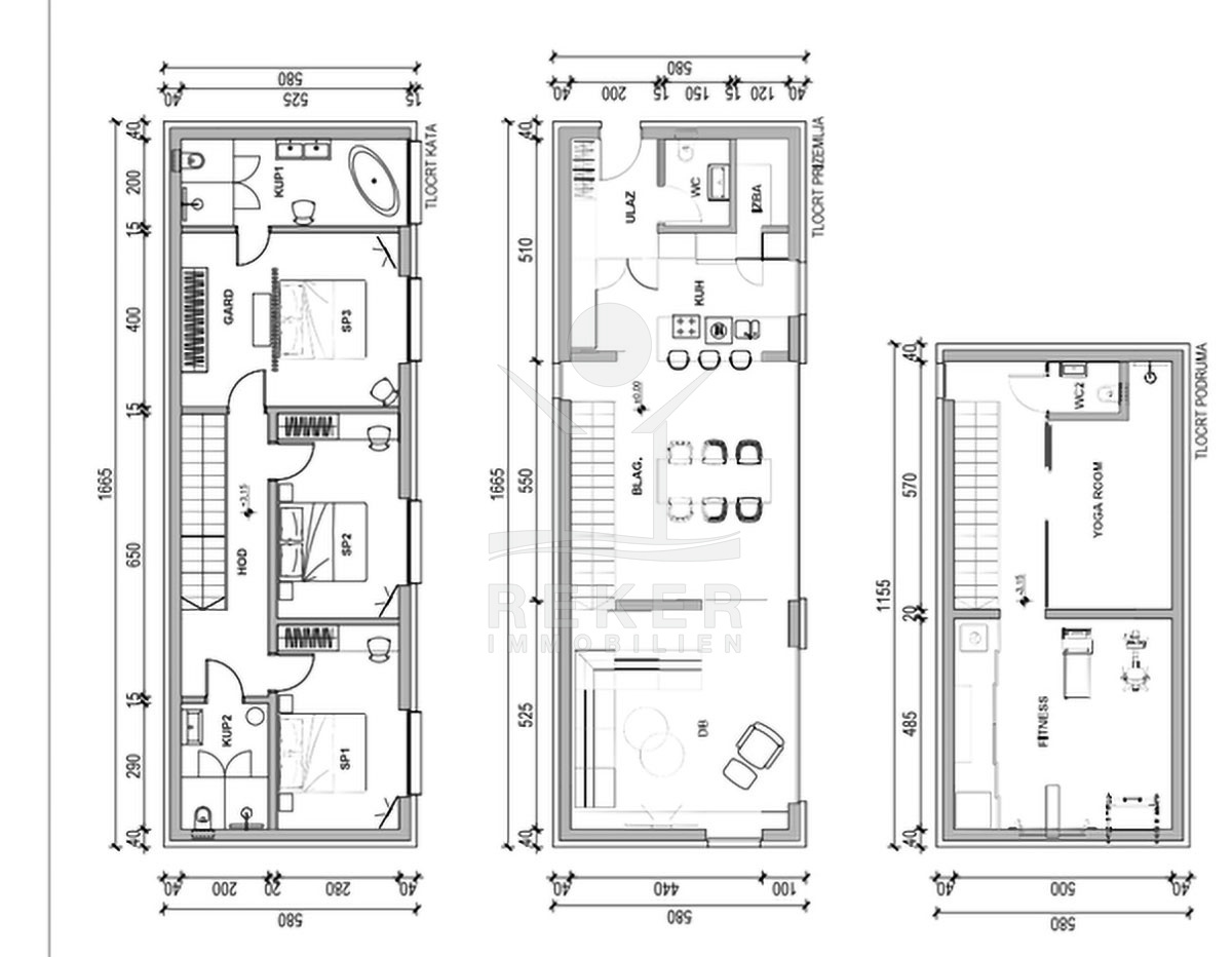
Das geplante Wohnhaus ist als Einfamilienhaus konzipiert und erstreckt sich über zwei oberirdische Etagen, nämlich das Erdgeschoss und die erste Etage. Zusätzlich bietet eine unterirdische Etage Platz für einen Keller. Ein Highlight des Hauses ist der Außenpool, der den Bewohnern eine erfrischende Abkühlung und eine wunderbare Aussicht auf das Meer ermöglicht.
Die Bruttobaufläche beträgt: Keller 66,99 m², Erdgeschoss 96,57 m², erster Stock 96,57 m², insgesamt 260,13 m², Nebengebäude 49,46 m², insgesamt 309,60 m², Grundrissfläche 96,57 und Nebengebäude 49,46 m², insgesamt 146,03 m², Koeffizient von Auslastung Kis=0,32, Kig=0,15.
Immobiliendaten
- Objektart: Grundstück
- Objekttyp: Baugrundstück
- ID: 6164
- Kaufpreis: 387.000 €
- Provision: 3,75 % inkl. MwSt. in Kroatien
- Grundstücksgröße: 969 m²
- Land: Kroatien
- Region: Kvarner-Bucht
- Ort: Linardići
- Meerentfernung: 2 km
Haben Sie Interesse das schöne Baugrundstück zu besitzen?
Nehmen Sie gerne Kontakt mit mir auf!
Ich bin Heiner Reker, Gründer und
Geschäftsführer von Reker Immobilien d.o.o. Ich begleite Sie bei Ihrer aufregenden Reise in die Welt der Immobilien in Kroatien.
Gerne organisiere ich persönlich mit meinen qualifizierten Partnern jeden Schritt bei Ihrem rechtssicheren und stressfreien Immobilienkauf in Kroatien.
Füllen Sie das Formular aus und ich melde mich gerne zum gewünschten Zeitpunkt bei Ihnen.
Bis bald
Exposé mitnehmen?
Laden Sie unser PDF-Exposé herunter und Sie haben die wichtigste Objektdaten & Bilder immer zur Hand
Exposé mitnehmen?
Nehmen Sie Kontakt mit uns auf, ein Exposé schicken wir gerne per E-Mail
Ihre Traum-Immobilie noch nicht gefunden?
Besuchen Sie diese Seiten!






