BYE BÜRO, HALLO ADRIA: IHRE VILLA MIT POOL IST SCHON GENEHMIGT
Lage & Außenbereich
Dieses Baugrundstück liegt in der grünen, ruhigen Umgebung der Stadt Krk, auf der beliebten Insel Krk. Das Grundstück misst 887 m² und befindet sich in der Bauzone. Hier genießen Sie Privatsphäre und auch einen schönen Meerblick. Fern vom Massentourismus, aber dennoch gut erreichbar. Die Entfernung zum Strand beträgt ca. 1.500 m. Ideal für alle, die Nähe zur Küste suchen, aber in entspannter Atmosphäre leben möchten.
Bauprojekt
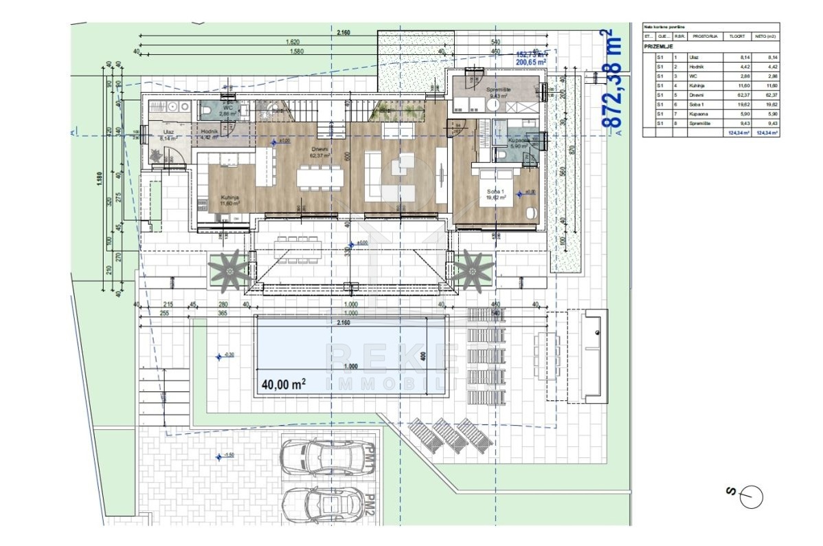
Die Planung steht: Eine moderne Villa mit 242,12 m² Wohnfläche … inklusive gültiger Baugenehmigung. Das Projekt umfasst fünf Schlafzimmer, vier Badezimmer, offene Wohnbereiche und großzügige Fensterfronten. Im Erdgeschoss: offene Küche mit Essbereich, Wohnraum, ein Schlafzimmer mit Bad sowie direkter Zugang zur Terrasse. Im Obergeschoss: vier weitere Schlafzimmer, drei Bäder und ein Balkon mit Blick auf das Meer. Herzstück im Außenbereich ist der 40 m² große Pool, umgeben von mediterraner Bepflanzung. Auch eine Außenküche mit Lounge-Zone ist eingeplant – perfekt für laue Sommerabende.
Das Baugrundstück erwartet Sie in Krk!
Die Stadt Krk ist die bedeutendste Stadt und mit ca. 3700 Einwohnern auch die größte Stadt auf der Insel. Sie ist Hafenstadt und Kurort und liegt nur ca. 25 km von der Brücke entfernt.
- Ort: Krk (Stadt)
- Einwohnerzahl: 6243 (2011)
- Region: Kvarner-Bucht
- Insel: Krk
- Autobahnentfernung: ca. 30 km *
- Nächster Flughafen: Rijeka / ca. 26 km *
Immobiliendaten
- Objektart: Grundstück
- Objekttyp: Baugrundstück
- ID: 8843
- Kaufpreis: 350.000 €
- Provision: 3,75 % inkl. MwSt. in Kroatien
- Grundstücksgröße: 887 m²
- Land: Kroatien
- Region: Kvarner-Bucht
- Ort: Krk
- Lage: Ortslage
- Meerentfernung: 2 km
Haben Sie Interesse das schöne Baugrundstück zu besitzen?
Nehmen Sie gerne Kontakt mit mir auf!
Ich bin Heiner Reker, Gründer und
Geschäftsführer von Reker Immobilien d.o.o. Ich begleite Sie bei Ihrer aufregenden Reise in die Welt der Immobilien in Kroatien.
Gerne organisiere ich persönlich mit meinen qualifizierten Partnern jeden Schritt bei Ihrem rechtssicheren und stressfreien Immobilienkauf in Kroatien.
Füllen Sie das Formular aus und ich melde mich gerne zum gewünschten Zeitpunkt bei Ihnen.
Bis bald
Exposé mitnehmen?
Laden Sie unser PDF-Exposé herunter und Sie haben die wichtigste Objektdaten & Bilder immer zur Hand
Exposé mitnehmen?
Nehmen Sie Kontakt mit uns auf, ein Exposé schicken wir gerne per E-Mail
Ihre Traum-Immobilie noch nicht gefunden?
Besuchen Sie diese Seiten!




