EXKLUSIVES BAUGRUNDSTÜCK MIT BAUGENEHMIGUNG FÜR STADTVILLA AUF DER INSEL KRK
Perfekte Umgebung mit Meerblick: Nur 400 Meter zum Meer entfernt
Das Grundstück auf der Insel Krk befindet sich nur 400 Meter vom Meer entfernt und bietet eine traumhafte Umgebung für Ihr zukünftiges Zuhause. Die Insel Krk, die größte Insel Kroatiens, besticht durch ihre weitreichende Geschichte, ihre wertvollen Kulturgüter und ihre wunderschönen Badebuchten. Das Baugrundstück liegt in der Nähe des Zentrums von Krk, wo Einkaufsmöglichkeiten und Restaurants bequem erreichbar sind. Die Insel ist über die Brücke Krk leicht zu erreichen. Der Flughafen Rijeka bietet zudem eine gute Anbindung an viele europäische Flughäfen. Die ruhige Lage des Baugrundstücks bietet die ideale Voraussetzung, um Ihr persönliches Traumhaus zu errichten und das mediterrane Flair in vollen Zügen zu genießen. Ein einzigartiger Ort für Ruhe und Erholung, umgeben von der Schönheit der Insel Krk.
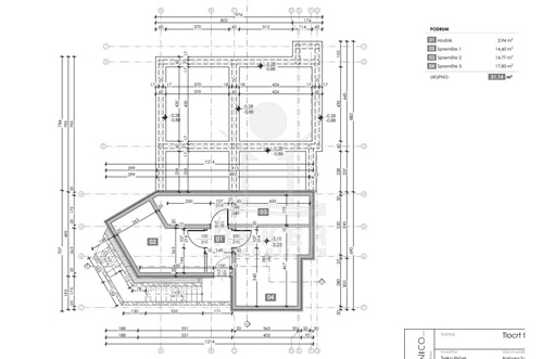
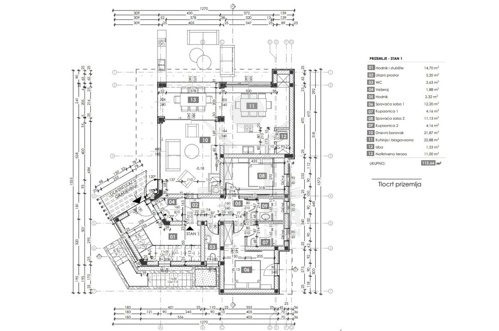
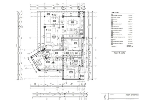
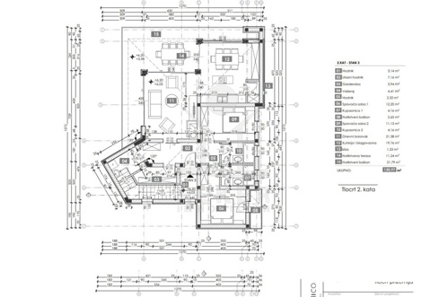
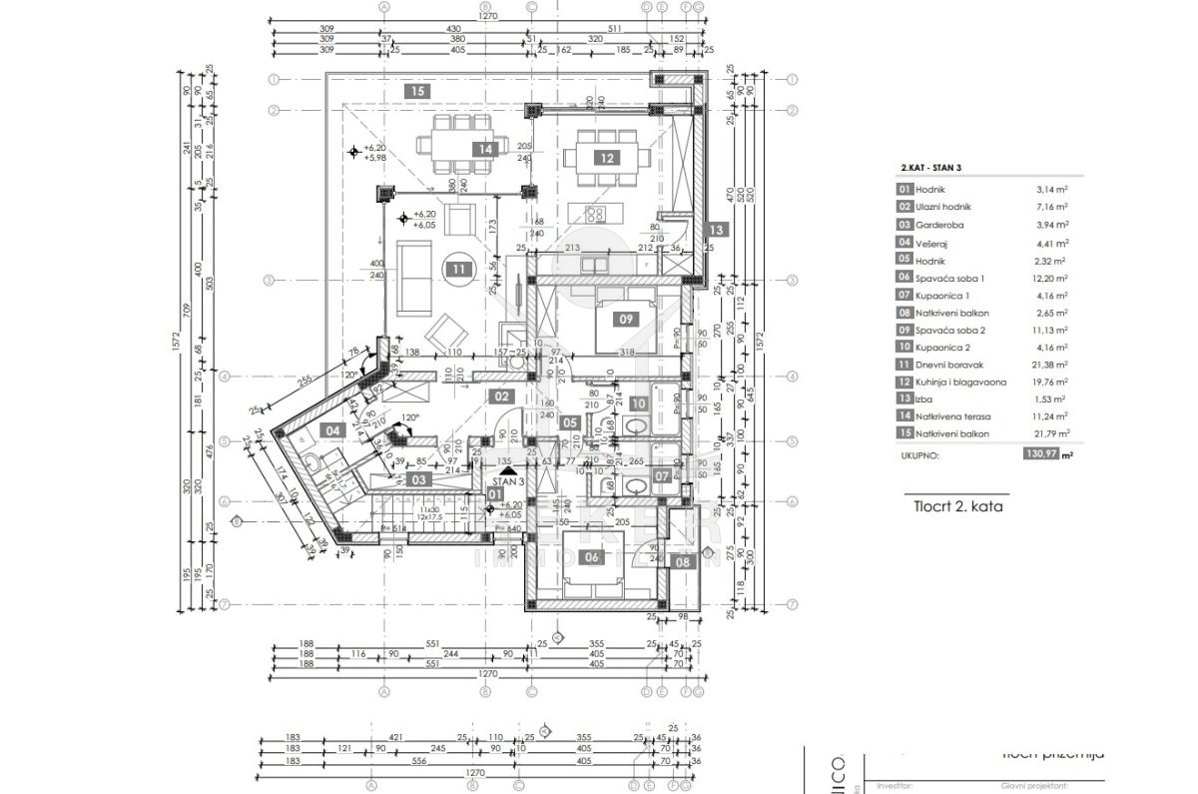
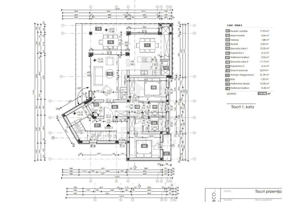
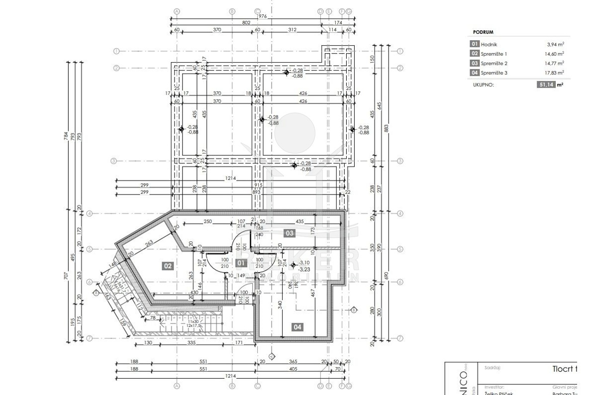
Hier wartet ein exklusives Anwesen von 600 m² darauf, dass eine Stadtvilla mit einer Bruttofläche von 424 m² darauf errichtet wird. Die notwendige Genehmigung für den Bau der dreistöckigen Villa mit drei Wohneinheiten ist bereits vorhanden. Jede Einheit verfügt über großzügige Wohnflächen: 115,66 m² im Erdgeschoss, 130,88 m² im ersten Stock und 130,97 m² im zweiten Stock. Zusätzlich gibt es einen gemeinsamen Keller von 51 m². Das Grundstück ist voll erschlossen, mit einer asphaltierten Straße, Steinmauer, Strom-, Wasser-, Abwasser-, Internet- und Telefonanschlüssen sowie sechs Parkplätzen. Alle Baubeiträge sind bereits entrichtet, was einen reibungslosen Bauablauf ermöglicht.
Das Baugrundstück erwartet Sie in Krk!
Die Stadt Krk ist die bedeutendste Stadt und mit ca. 3700 Einwohnern auch die größte Stadt auf der Insel. Sie ist Hafenstadt und Kurort und liegt nur ca. 25 km von der Brücke entfernt.
- Ort: Krk (Stadt)
- Einwohnerzahl: 6243 (2011)
- Region: Kvarner-Bucht
- Insel: Krk
- Autobahnentfernung: ca. 30 km *
- Nächster Flughafen: Rijeka / ca. 26 km *
Immobiliendaten
- Objektart: Grundstück
- Objekttyp: Baugrundstück
- ID: 7117
- Kaufpreis: 650.000 €
- Provision: 3,75 % inkl. MwSt. in Kroatien
- Grundstücksgröße: 600 m²
- Land: Kroatien
- Region: Kvarner-Bucht
- Ort: Krk
- Lage: Stadtrand
- Meerentfernung: 400 m
Haben Sie Interesse das schöne Baugrundstück zu besitzen?
Nehmen Sie gerne Kontakt mit mir auf!
Ich bin Heiner Reker, Gründer und
Geschäftsführer von Reker Immobilien d.o.o. Ich begleite Sie bei Ihrer aufregenden Reise in die Welt der Immobilien in Kroatien.
Gerne organisiere ich persönlich mit meinen qualifizierten Partnern jeden Schritt bei Ihrem rechtssicheren und stressfreien Immobilienkauf in Kroatien.
Füllen Sie das Formular aus und ich melde mich gerne zum gewünschten Zeitpunkt bei Ihnen.
Bis bald
Exposé mitnehmen?
Laden Sie unser PDF-Exposé herunter und Sie haben die wichtigste Objektdaten & Bilder immer zur Hand
Exposé mitnehmen?
Nehmen Sie Kontakt mit uns auf, ein Exposé schicken wir gerne per E-Mail
Ihre Traum-Immobilie noch nicht gefunden?
Besuchen Sie diese Seiten!






