ZWEI GRUNDSTÜCKE MIT BAUPROJEKTEN IN BEGEHRTER KÜSTENREGION DALMATIENS
Traumhafte Meerblick-Grundstücke
Die Baugrundstücke liegen nur wenige Schritte vom Meer entfernt in der idyllischen Region von Grebaštica, zwischen Sibenik und Trogir. Die Lage bietet nicht nur einen direkten Zugang zum glasklaren Wasser der Adria, sondern auch eine Vielzahl von Einkaufs- und Ausgehmöglichkeiten in unmittelbarer Nähe. Bootsliebhaber werden den südlich gelegenen Bootsanlegeplatz zu schätzen wissen, der eine Genehmigung für die private Nutzung einer Boje beinhaltet. Die Umgebung ist reich an Ausflugsmöglichkeiten zu nahegelegenen Sehenswürdigkeiten und Städten wie Trogir, Split, Primosten und Sibenik, die alle mit Geschichte und Schönheit beeindrucken. Diese Grundstücke vereinen Privatsphäre, Meereszugang und die Möglichkeit, die kulturellen Schätze Kroatiens zu erkunden, und bieten somit eine unvergleichliche Kombination.
Zwei Baugrundstücke mit Bauprojekt
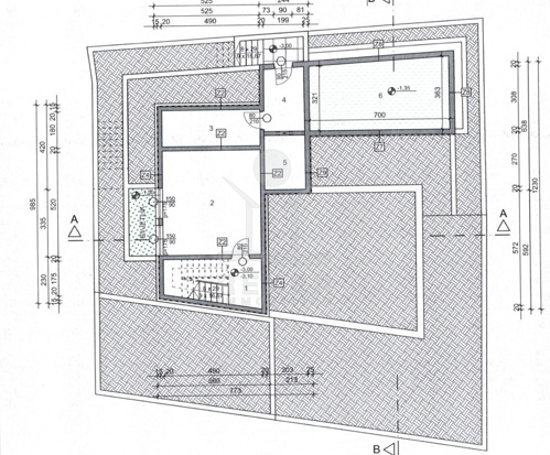
Das Anwesen bieten insgesamt 1.125 m² Fläche. Eines der Grundstücke, 756 m² groß, beherbergt bereits ein Gebäude, während das kleinere mit 369 m² im hinteren Bereich liegt, wie bereits beschrieben.
Bauprojekt für die Umsetzung
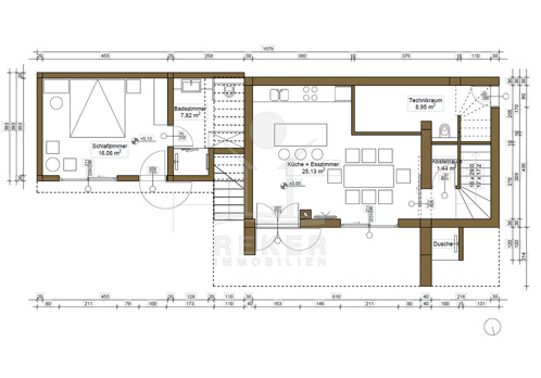
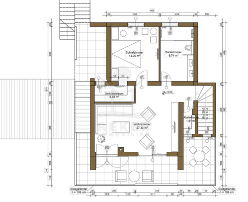
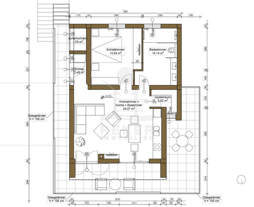
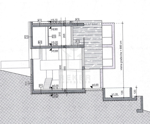
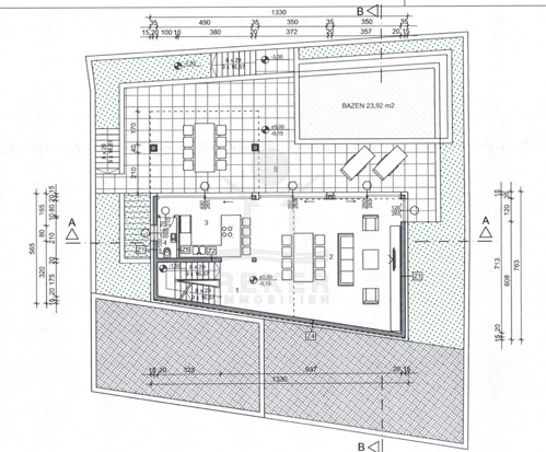
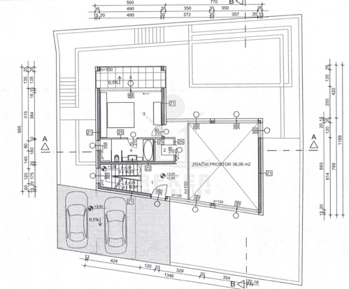
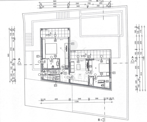
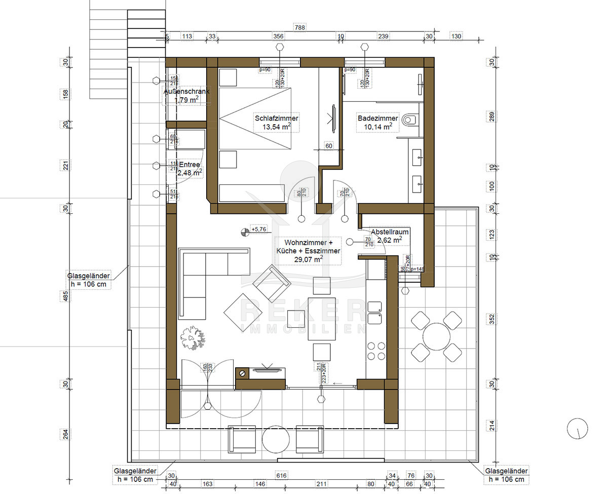
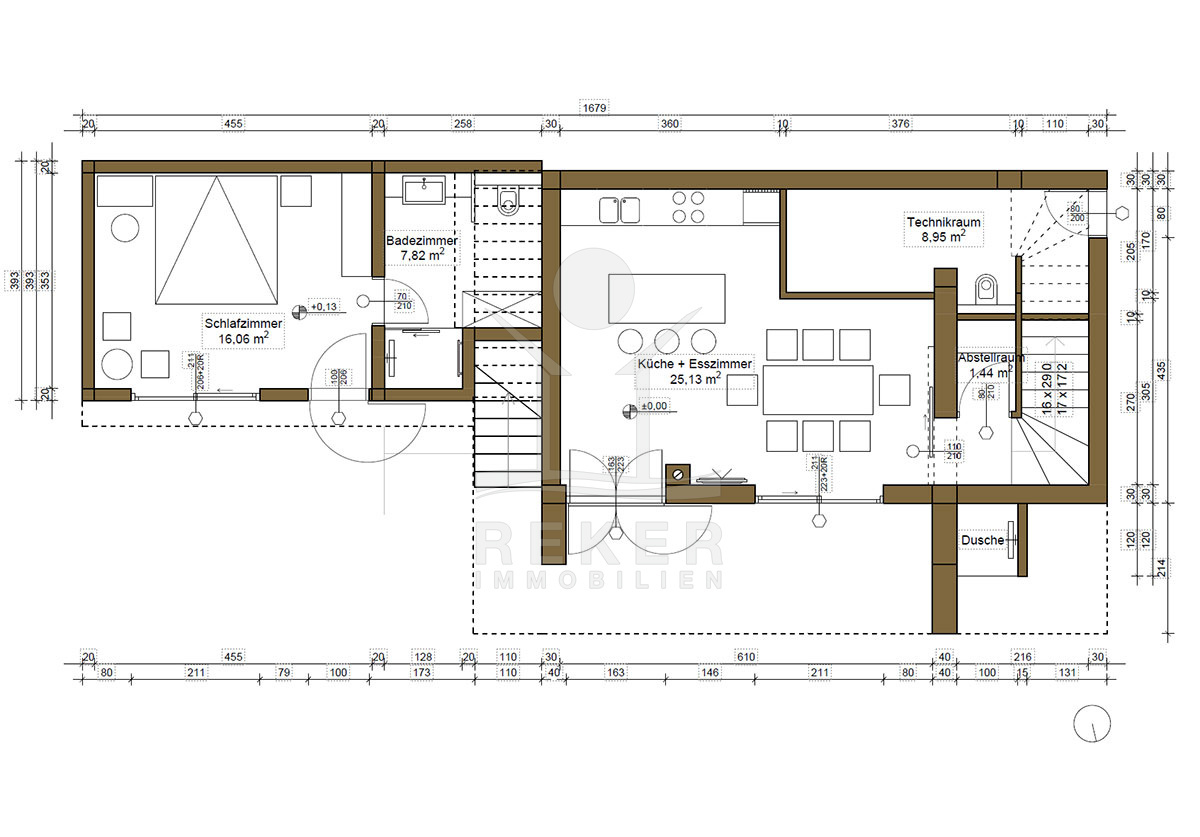
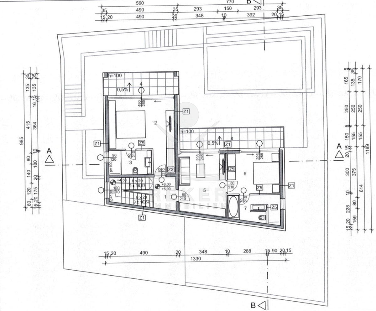
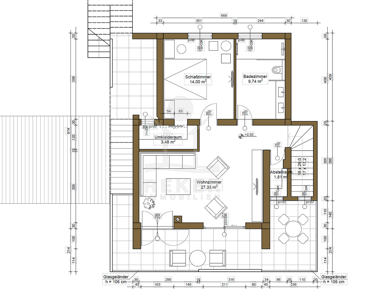
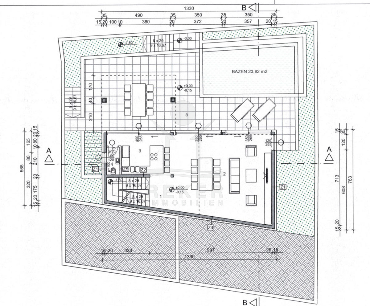
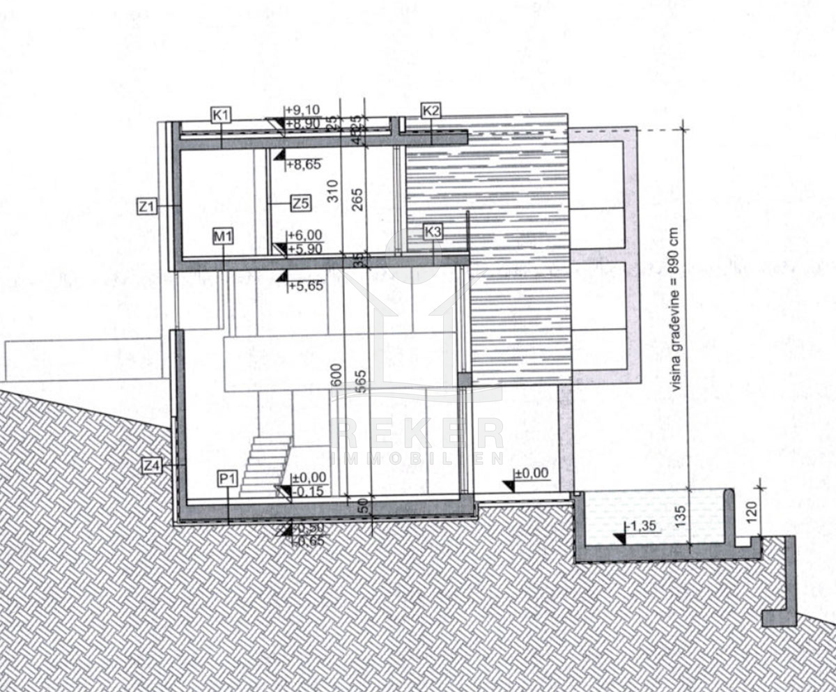
Das Baugrundstück mit 756 m² bietet die Möglichkeit, eine große Villa zu errichten, bestehend aus einem Erdgeschoss, einem Obergeschoss und einem zweiten Obergeschoss mit einer Terrasse und einem Pool. Zudem gehört eine Garage zum Bauvorhaben dazu.
Platz für ein geräumiges Familienhaus
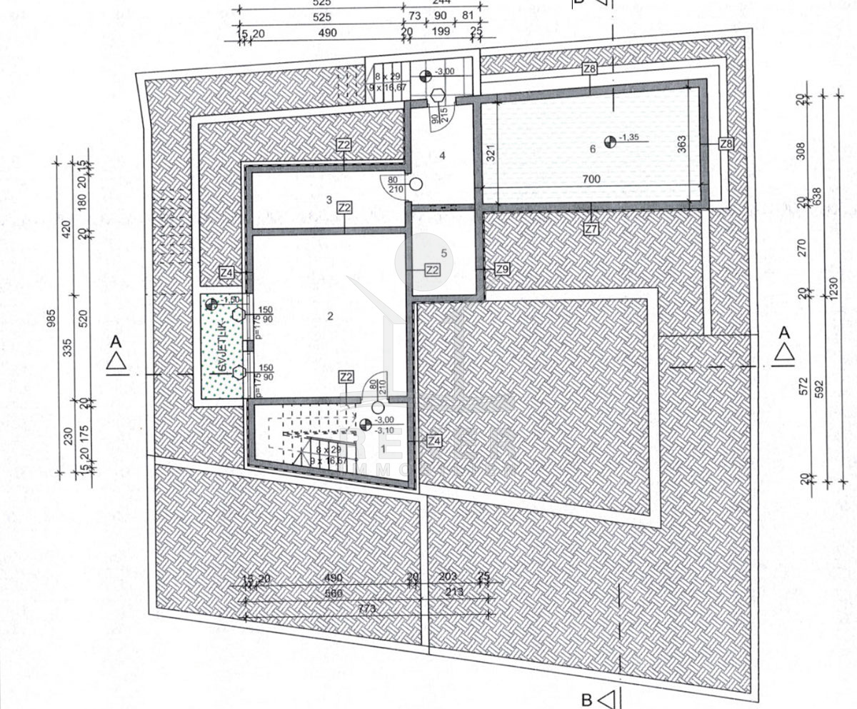
Das Baugrundstück mit 369 m² bietet Raum für den Bau eines geräumigen Familienhauses auf insgesamt vier Etagen. Im Untergeschoss sind 55 m² vorgesehen, im Erdgeschoss 73 m², gefolgt von 47 m² im Obergeschoss und 90 m² im zweiten Stock. Diese Einteilung ermöglicht unterschiedliche Nutzungsmöglichkeiten der Räume und schafft genügend Wohnfläche für eine Familie.
Das Baugrundstück erwartet Sie in Grebaštica!
- Ort: Grebaštica (Dorf)
- Einwohnerzahl: 937 (2011)
- Region: Dalmatien-Sibenik
- Autobahnentfernung: ca. 18 km *
- Nächster Flughafen: Split / ca. 50 km *
Immobiliendaten
- Objektart: Grundstück
- Objekttyp: Baugrundstück
- ID: 6669
- Kaufpreis: 900.000 €
- Provision: 3,75 % inkl. MwSt. in Kroatien
- Grundstücksgröße: 1125 m²
- Land: Kroatien
- Region: Dalmatien-Sibenik
- Ort: Grebaštica
- Meerentfernung: 15 m
Haben Sie Interesse das schöne Baugrundstück zu besitzen?
Nehmen Sie gerne Kontakt mit mir auf!
Ich bin Heiner Reker, Gründer und
Geschäftsführer von Reker Immobilien d.o.o. Ich begleite Sie bei Ihrer aufregenden Reise in die Welt der Immobilien in Kroatien.
Gerne organisiere ich persönlich mit meinen qualifizierten Partnern jeden Schritt bei Ihrem rechtssicheren und stressfreien Immobilienkauf in Kroatien.
Füllen Sie das Formular aus und ich melde mich gerne zum gewünschten Zeitpunkt bei Ihnen.
Bis bald
Exposé mitnehmen?
Laden Sie unser PDF-Exposé herunter und Sie haben die wichtigste Objektdaten & Bilder immer zur Hand
Exposé mitnehmen?
Nehmen Sie Kontakt mit uns auf, ein Exposé schicken wir gerne per E-Mail
Ihre Traum-Immobilie noch nicht gefunden?
Besuchen Sie diese Seiten!





















































