BAUGRUNDSTÜCK AUF BRAČ: NUR WENIGE SCHRITTE VOM MEER ENTFERNT
Magischer Meerblick
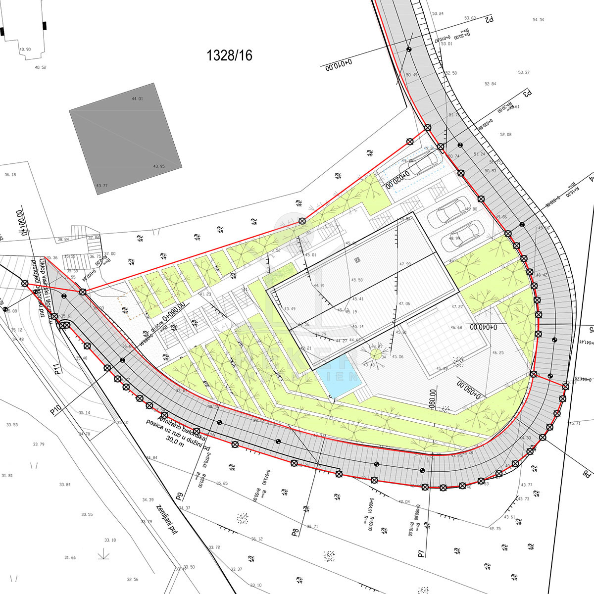
Ca. 897 m² Fläche erwarten Sie auf diesem südlich ausgerichteten, abschüssigen Baugrundstück in fantastischer Lage. Innerhalb von nur 300 m erreichen Sie bereits das Orstzentrum einer zauberhaften Kleinstadt.
Bereits erteilte Baugenehmigung
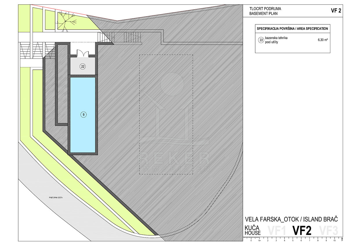
Sie können direkt mit dem Bau beginnen, denn für diese Wohlfühl-Oase mit Erdgeschoss und Obergeschoss wurde bereits eine Baugenehmigung erteilt.
Immobiliendaten
- Objektart: Grundstück
- Objekttyp: Baugrundstück
- ID: 4968
- Kaufpreis: 340.000 €
- Provision: 3,75 % inkl. MwSt. in Kroatien
- Grundstücksgröße: 897 m²
- Land: Kroatien
- Region: Dalmatien-Split
- Ort: Brač
- Meerentfernung: 200 m
- Ortsmitte: 300 m
Haben Sie Interesse das schöne Baugrundstück zu besitzen?
Nehmen Sie gerne Kontakt mit mir auf!
Ich bin Heiner Reker, Gründer und
Geschäftsführer von Reker Immobilien d.o.o. Ich begleite Sie bei Ihrer aufregenden Reise in die Welt der Immobilien in Kroatien.
Gerne organisiere ich persönlich mit meinen qualifizierten Partnern jeden Schritt bei Ihrem rechtssicheren und stressfreien Immobilienkauf in Kroatien.
Füllen Sie das Formular aus und ich melde mich gerne zum gewünschten Zeitpunkt bei Ihnen.
Bis bald
Exposé mitnehmen?
Laden Sie unser PDF-Exposé herunter und Sie haben die wichtigste Objektdaten & Bilder immer zur Hand
Exposé mitnehmen?
Nehmen Sie Kontakt mit uns auf, ein Exposé schicken wir gerne per E-Mail
Ihre Traum-Immobilie noch nicht gefunden?
Besuchen Sie diese Seiten!




















