JUWEL ÜBER DER KÜSTE: GRUNDSTÜCK MIT GENEHMIGTEN DESIGN-VILLEN
Lage & Außenbereich
Grünes Umfeld, ruhige Anliegerstraße und ein weiter Blick bis zum Meer: Dieses 1.400 m² große Baugrundstück in Bilice bei Šibenik erfüllt viele Kriterien, die bei der Grundstückssuche ganz oben stehen. In direkter Nachbarschaft entstehen bereits hochwertige Neubauten. Das Grundstück ist bebaubar, teilbar und besitzt eine eigene Zufahrtsstraße. Meerblick ist vorhanden. Strom, Wasser und weitere Anschlüsse sind in der Nähe.
Bauprojekt
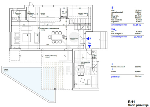
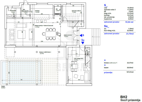
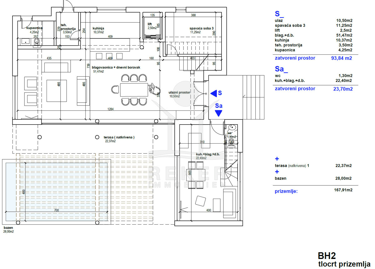
Geplant sind zwei moderne Villen mit klarer Formensprache, großzügigen Glasflächen und viel Privatsphäre. Jede Villa mit eigenem Pool, Lift, Garage und Balkon mit Blick aufs Wasser. Das Projekt ist fertig durchgeplant, die Genehmigung wurde eingereicht – mit einem Bescheid wird im Frühjahr 2026 gerechnet. Die hochwertigen Renderings zeigen bereits jetzt, wie stark das Konzept auf dem Grundstück funktioniert. Preislich interessant: 280.000 € inkl. Projekt und Genehmigung.
Das Baugrundstück erwartet Sie in Šibenik!
- Ort: Šibenik (Stadt)
- Einwohnerzahl: 34.302 (2011)
- Region: Dalmatien-Sibenik
- Autobahnentfernung: ca. 8 km *
- Nächster Flughafen: Split / ca. 50 km *
Immobiliendaten
- Objektart: Grundstück
- Objekttyp: Baugrundstück
- ID: 9134
- Kaufpreis: 280.000 €
- Provision: 3,75 % inkl. MwSt. in Kroatien
- Grundstücksgröße: 1400 m²
- Land: Kroatien
- Region: Dalmatien-Sibenik
- Ort: Šibenik
- Lage: Ortslage
- Meerentfernung: 1 km
Haben Sie Interesse das schöne Baugrundstück zu besitzen?
Nehmen Sie gerne Kontakt mit mir auf!
Ich bin Heiner Reker, Gründer und
Geschäftsführer von Reker Immobilien d.o.o. Ich begleite Sie bei Ihrer aufregenden Reise in die Welt der Immobilien in Kroatien.
Gerne organisiere ich persönlich mit meinen qualifizierten Partnern jeden Schritt bei Ihrem rechtssicheren und stressfreien Immobilienkauf in Kroatien.
Füllen Sie das Formular aus und ich melde mich gerne zum gewünschten Zeitpunkt bei Ihnen.
Bis bald
Exposé mitnehmen?
Laden Sie unser PDF-Exposé herunter und Sie haben die wichtigste Objektdaten & Bilder immer zur Hand
Exposé mitnehmen?
Nehmen Sie Kontakt mit uns auf, ein Exposé schicken wir gerne per E-Mail
Ihre Traum-Immobilie noch nicht gefunden?
Besuchen Sie diese Seiten!




















