VERWIRKLICHEN SIE IHRE TRÄUME: NEUBAU LUXUS-APARTMENTHAUS MIT INDOOR-POOL, SAUNA & MEERBLICK IN BILICE
Einzigartiges Neubau-Resort in Bilice
Das luxuriöse Neubau-Resort in Bilice bietet eine einzigartige Kombination aus natürlicher Schönheit, Ruhe und Luxus. Die Anlage erstreckt sich entlang einer ruhigen Straße, die von üppiger, unberührter Natur umgeben ist. Hier können Sie das mediterrane Flair in vollen Zügen genießen, während Sie nur 1 km vom erfrischenden Meer entfernt sind. Die Lage ermöglicht eine entspannte Lebensweise in einer ruhigen Umgebung, mit dem Zentrum des Ortes bequem erreichbar. Bilice selbst bezaubert mit malerischen Buchten und Stränden, die zum Entspannen und Erholen einladen. Dank der Nähe zu Touristenattraktionen wie der Altstadt von Sibenik, dem Krka-Nationalpark und den Kornati-Inseln bieten sich vielfältige Ausflugsmöglichkeiten. Während der Sommersaison laden traditionelle Feste und Veranstaltungen Besucher dazu ein, die lokale Kultur kennenzulernen. Das außergewöhnliche Apartmenthaus ist nicht nur ein luxuriöses Anwesen, sondern auch ein Portal zu unvergleichlichen Naturerlebnissen und kulturellen Highlights.
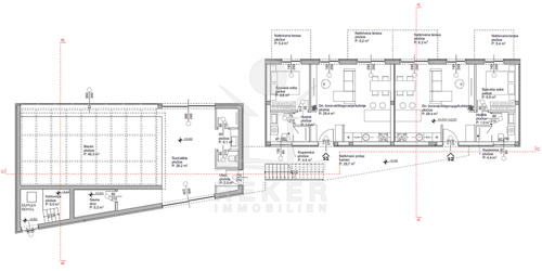
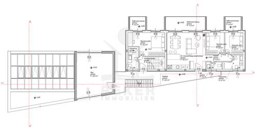
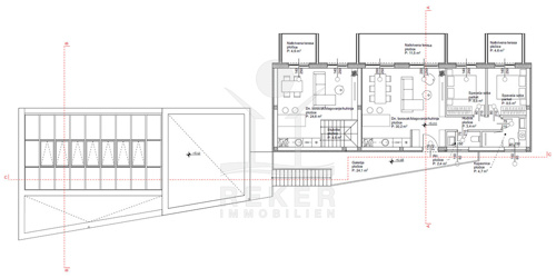
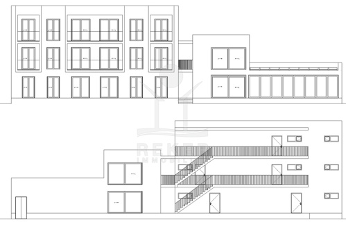
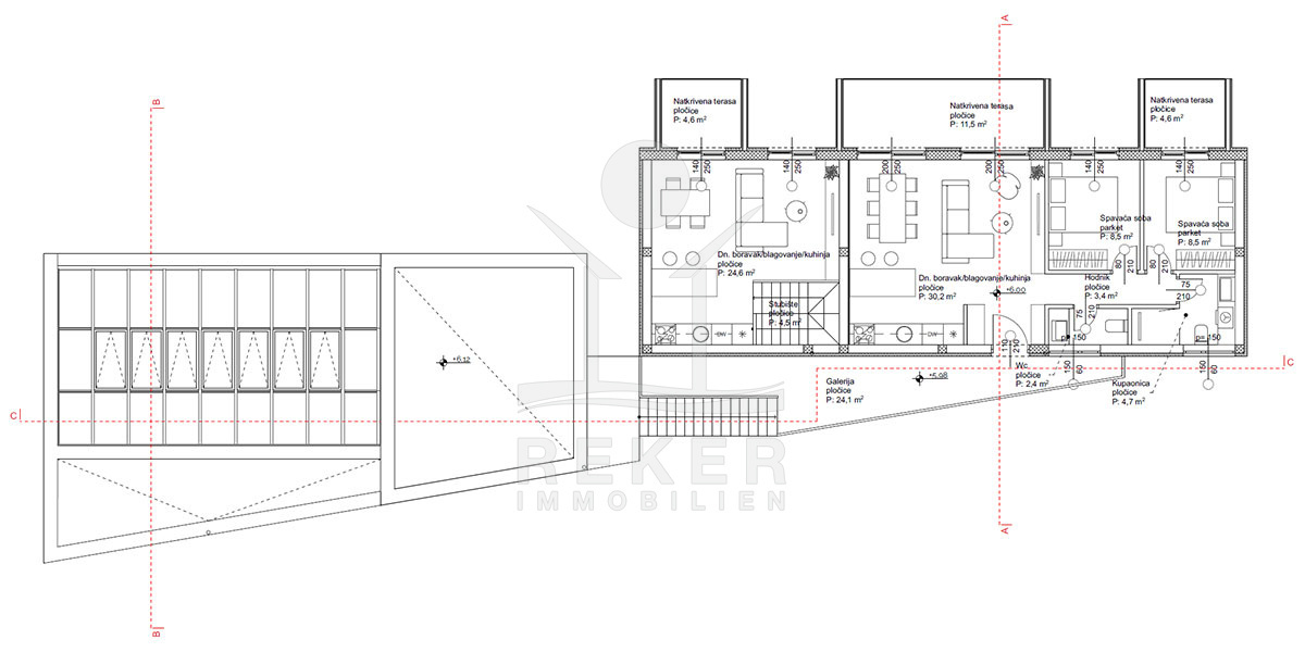
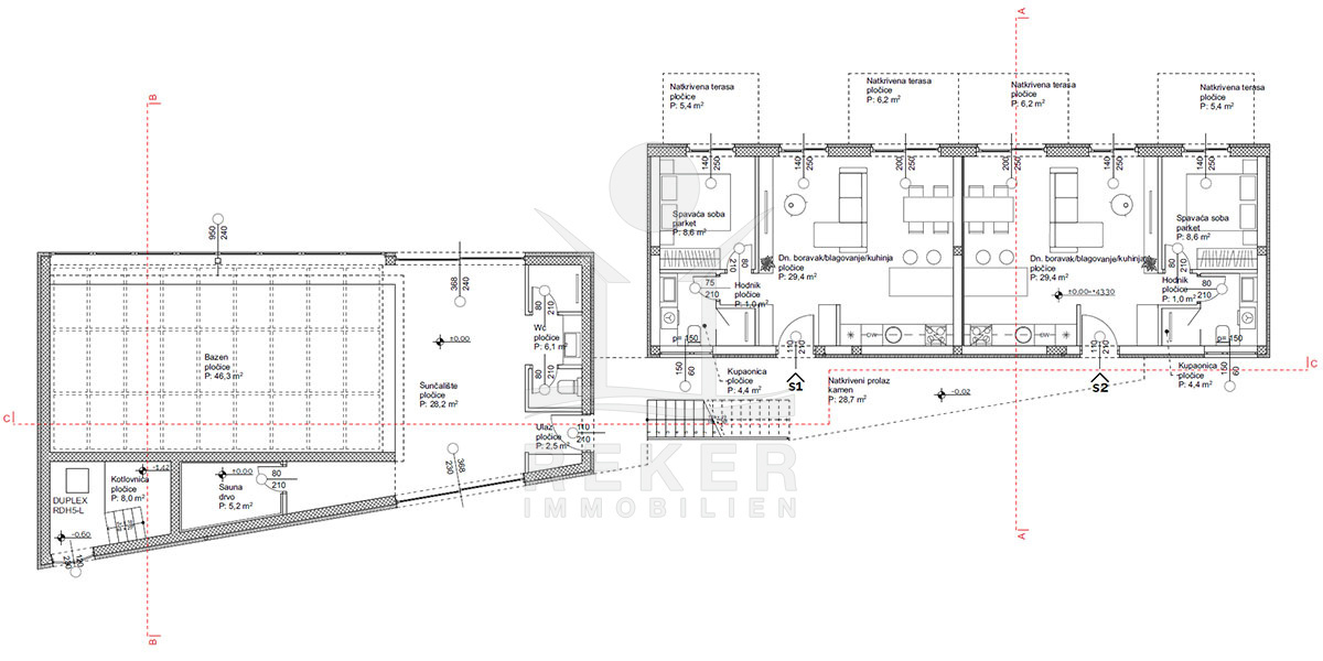
Das Anwesen erstreckt sich über 3 Etagen und bietet insgesamt 500 m² Wohnfläche. Bestehend aus 3 Apartments mit 45 m² und 2 Apartments mit 65 m² Wohnfläche. Mit dem Bau, der voraussichtlich im Herbst 2024 beginnt, werden modernste Ausstattungsmerkmale implementiert, darunter Fußbodenheizung durch eine Wärmepumpe, Warmwasserbereitung mittels Solarthermie und Stromversorgung durch ein Solarsystem (30 kw) mit Speicher. Zwei Ladestationen für Elektrofahrzeuge sind ebenfalls vorgesehen. Das Haus wurde nach Maßgabe des nachhaltigen Tourismus konzipiert und bietet ganzjährige Nutzung sowie modernsten Komfort zu jeder Jahreszeit.
Diese Immobilie bietet Ihnen ein umfassendes Serviceangebot, von der Vermietungsüberwachung bis hin zu Wartungsdienstleistungen und Immobilienvermietungsservices. Genießen Sie luxuriöse Annehmlichkeiten wie einen Spa-Bereich mit Innenpool, Sauna, Fitnessstudio und Tennisplatz.
Die geplante Entwicklung der Umgebung mit neuen Bootsliegeplätzen im Hafen von Bilice sowie einem geplanten Golfplatz mit Hotel, Restaurants, Cafés und Hafen in Proklejan machen diese Immobilie zu einer lohnenden Investition mit großem Potenzial für hohe Auslastung und langfristige Wertsteigerung. Machen Sie diesen Luxus zu Ihrer Zukunftsinvestition.
Erstklassige Freizeiteinrichtungen für anspruchsvolle Genießer
Der Spar- und Wellnessbereich des Apartmenthauses beherbergt einen beeindruckenden Indoor-Pool, der beheizt ist und im Sommer vollständig geöffnet werden kann, sowie zwei luxuriöse Saunen und ein Fitnesscenter. Zusätzlich zum Wellness-Angebot verfügt das Resort über einen Tennisplatz und Tischtennisplätze, um das Angebot an sportlichen Aktivitäten abzurunden. Mit diesen erstklassigen Einrichtungen und der innovativen Ausstattung bietet das Apartmenthaus eine luxuriöse Umgebung, ein umfassendes Angebot an Freizeitgestaltung, um den Gästen ein unvergessliches Erlebnis zu bieten.
Das Apartmenthaus erwartet Sie in Šibenik!
- Ort: Šibenik (Stadt)
- Einwohnerzahl: 34.302 (2011)
- Region: Dalmatien-Sibenik
- Autobahnentfernung: ca. 8 km *
- Nächster Flughafen: Split / ca. 50 km *
Immobiliendaten
- Objektart: Haus
- Objekttyp: Apartmenthaus
- Baujahr: 2026
- ID: 6947
- Kaufpreis: 1.490.000 €
- Provision: 3,75 % inkl. MwSt. in Kroatien
- Wohnfläche: 500 m²
- Land: Kroatien
- Region: Dalmatien-Sibenik
- Ort: Šibenik
- Lage: Ortslage
- Meerentfernung: 1 km
- Ortsmitte: 2 km
Haben Sie Interesse das schöne Apartmenthaus zu besitzen?
Nehmen Sie gerne Kontakt mit mir auf!
Ich bin Heiner Reker, Gründer und
Geschäftsführer von Reker Immobilien d.o.o. Ich begleite Sie bei Ihrer aufregenden Reise in die Welt der Immobilien in Kroatien.
Gerne organisiere ich persönlich mit meinen qualifizierten Partnern jeden Schritt bei Ihrem rechtssicheren und stressfreien Immobilienkauf in Kroatien.
Füllen Sie das Formular aus und ich melde mich gerne zum gewünschten Zeitpunkt bei Ihnen.
Bis bald
Exposé mitnehmen?
Laden Sie unser PDF-Exposé herunter und Sie haben die wichtigste Objektdaten & Bilder immer zur Hand
Exposé mitnehmen?
Nehmen Sie Kontakt mit uns auf, ein Exposé schicken wir gerne per E-Mail
Ihre Traum-Immobilie noch nicht gefunden?
Besuchen Sie diese Seiten!









